
Residential
102 Joseph Street Development
Flat Bush, Auckland, NZ
Completed 2023
302m²Land
About This Project
This new build development at 102 Joseph Street in Flat Bush represents contemporary design and efficient living. Completed in 2023, the project includes modern residential layouts on a 302 sqm section. With flexible spaces designed for comfort and convenience, the property features open-plan living, high-quality finishes, and landscaped surroundings. Ideal for families or investors seeking a stylish, turnkey solution in a sought-after Auckland neighborhood.
Key Features
New build
Development project
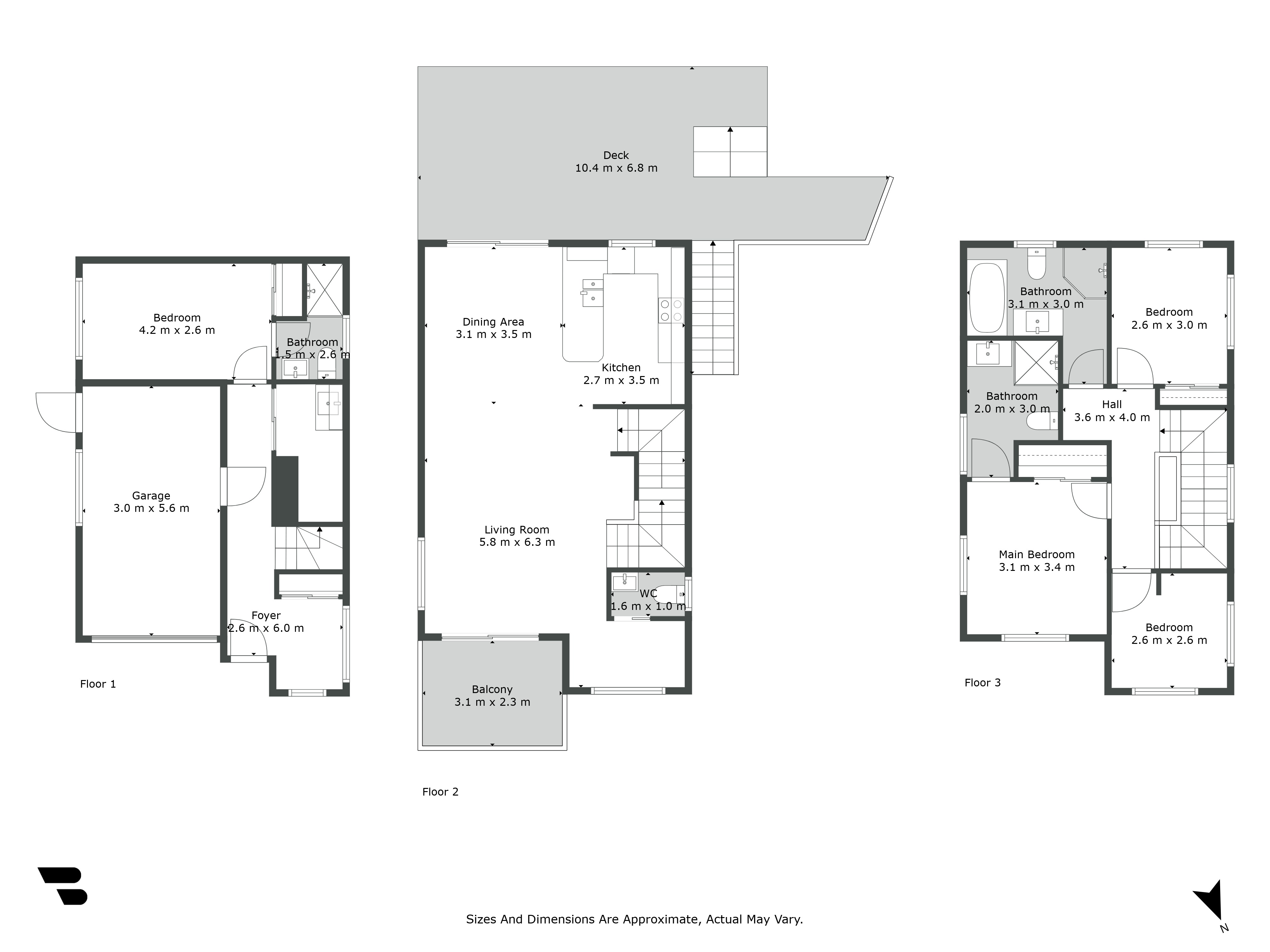
Floor Plan
Project Gallery
25 photosProject Details
Land Area
302m²Levels
2Completed
2023Start Your Project
Inspired by this project? Let's discuss how we can bring your vision to life.

