
Residential
57 Michael Bosher Way Residence
Flat Bush, Auckland, NZ
Completed 2021
4Baths
314m²Floor
364m²Land
About This Project
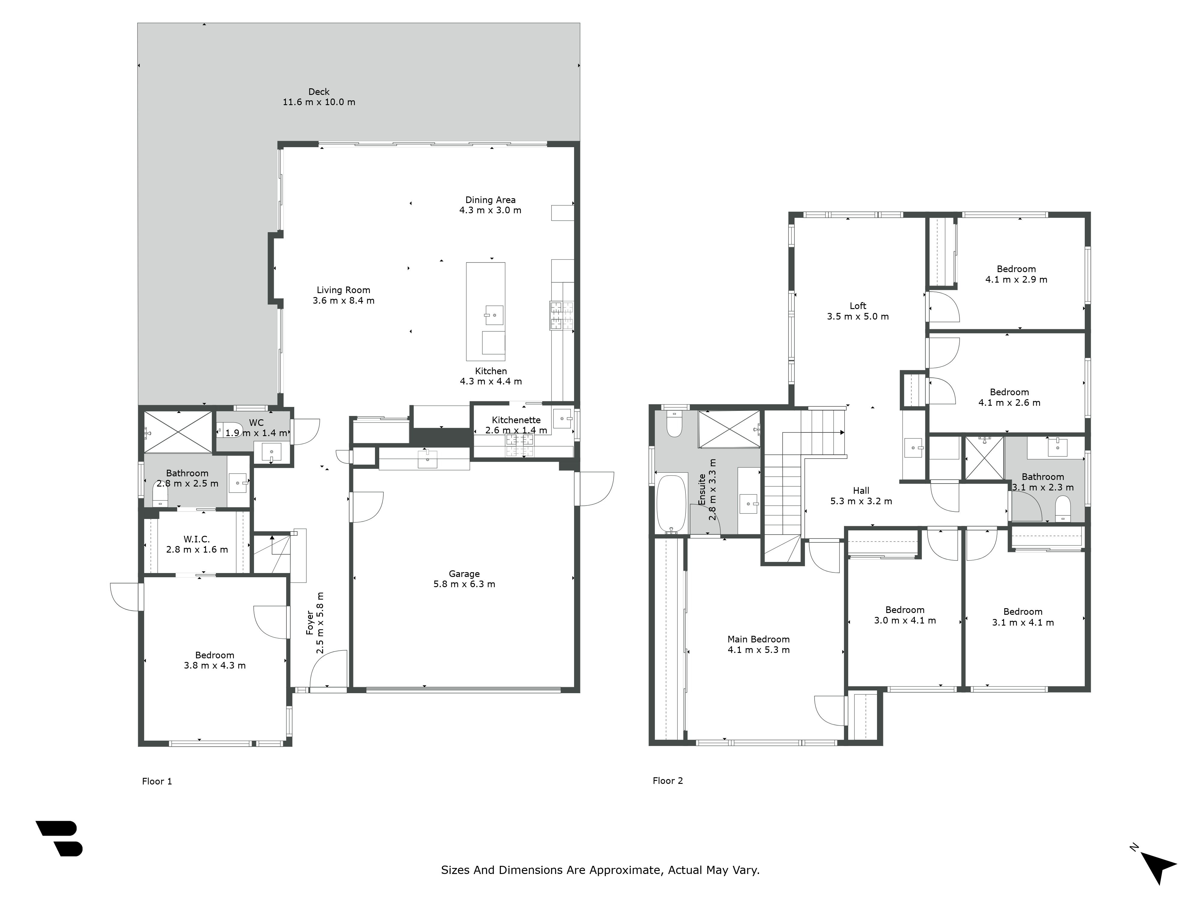
57 Michael Bosher Way is a modern Flat Bush residence featuring approximately 314 sqm of luxurious living on a 364 sqm section. With an estimated 4+ bathrooms and multiple living areas, the home is designed for seamless indoor-outdoor living. Contemporary finishes, open-plan kitchen and dining areas, and landscaped outdoor spaces create a harmonious environment for entertaining and relaxation. Completed in 2021, this residence combines modern architecture, high-end finishes, and thoughtful layout for a refined lifestyle.
Key Features
Modern design
Spacious living areas
Outdoor space
Floor Plan
Project Gallery
18 photosProject Details
Bathrooms
4Floor Area
314m²Land Area
364m²Levels
2Completed
2021Start Your Project
Inspired by this project? Let's discuss how we can bring your vision to life.
